物件情報

PROPERTY INFORMATION

六本木662ビル

物件情報

物件担当者より

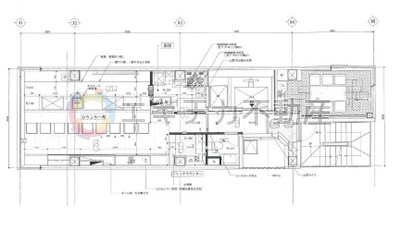
六本木通り沿い、高級感のある寿司屋の居抜きです。ダクト、グリルストラップもあり、すぐに営業可能です!

🔗詳しい物件情報・お問い合わせは下記のバナーから📩

六本木662ビル|港区・六本木駅【重飲食可・居抜き可・24時間利用可・フリーレント・新築】店舗・事務所・テナントなど事業用賃貸物件|飲食店・カフェ・美容室・サロン・オフィスの開業や移転に最適|即入居可

一覧へ戻る